OWNERSHIP TO THE PEOPLE
New Marina, Beach & Dog Park Coming to Algonquin!
This is Your Opportunity to Own River Rights to the Fox River that Includes Your Entire Household/Family
For Only $1,000 You will have Co-Ownership Rights Forever
(Very Affordable Payment Programs are Available)
Where
Located at 120 North River Road, Algonquin, located across River from Port Edward.
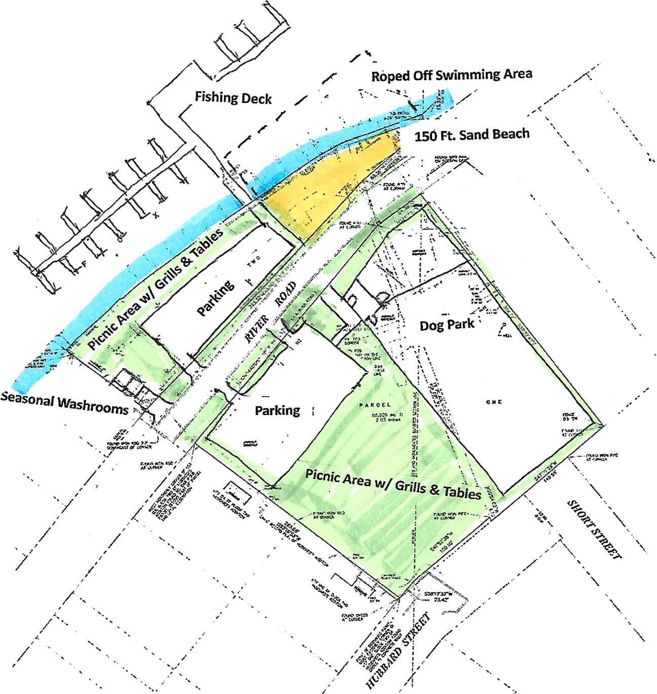
Property
2.7 Acres, 437-foot frontage on Fox River, located in the Downtown Algonquin Redevelopment Area, Algonquin Historical District, former Marina zoned Commercial. Has 17 piers (34 dock slips) grandfathered by US Army Corps of Engineers. No Regulatory Flood Zone.
Future Property Improvements
- 34 Dock Slip Marina, featuring Handicapped Accessible Fishing Deck.
- 150-Foot Sand Beach with Floating Roped Off Swimming Area.
- 3/4 Acre Professional Dog Park with Mulch Base and Agility Equipment.
- Men’s & Women’s Seasonal Rest Rooms.
- Improved Picnic Areas with Wood Tables and Grills.
- Fire Pits along River.
- On-Site Parking, Abundant Public Parking across Bridge in Downtown Algonquin.
- Docks and Trees will feature low tone Colored LED lights in Trees, along Shoreline and under and along the Docks. The property will “Glow” at Night to be a Special Entertainment Experience.
- Future Plans call for the Acquisition of Additional Vacant Parcels that may Extend up the Hill to Highland Avenue.
- Great Launch Location for Kayaking, Paddle Boarding or Canoeing.
- Sledding Course and Skating on the River in Cold Winters.
Resources
The Market & Demand for Ownership Units
Your investment goes beyond improving the quality of your family’s daily life. It can significantly increase your Home Property Value and fully transferable if you eventually move to a new neighborhood.
Your Community Extends Online
Since we will have over 1,000 families and individuals, we can communicate with the other share owners via our website. We are hoping to attract architects, civil engineers, and professional business owners who would like to communicate their services to the other owners. Many community issues can be shared, including local, social, leisure, and business lead sharing etc.
Why Invest?
Use the property 24/7 all year round under reasonable rules and regulations.
For Questions or Further Information Please Email: office@cjscpa.com
Carl Swanson, President & Managing Broker
Commercial Property Associates, Inc.
2413 West Algonquin Road, Suite 422
Algonquin, Illinois 60102
Additional Resources
No Boat Necessary to Enjoy the River
You can access the Fox River via the Docks and enjoy Nature, Sun and Fresh Air. Boaters down the River will want to Own a Share to dock their Boats and walk to Downtown Algonquin Restaurants.

